Request Appraisal

"*" indicates required fields

This field is for validation purposes and should be left unchanged.
How can we help?*

2 / 14 Harcourt Street, ASHWOOD

$1,180,000

  • 3
  • 2
  • 2

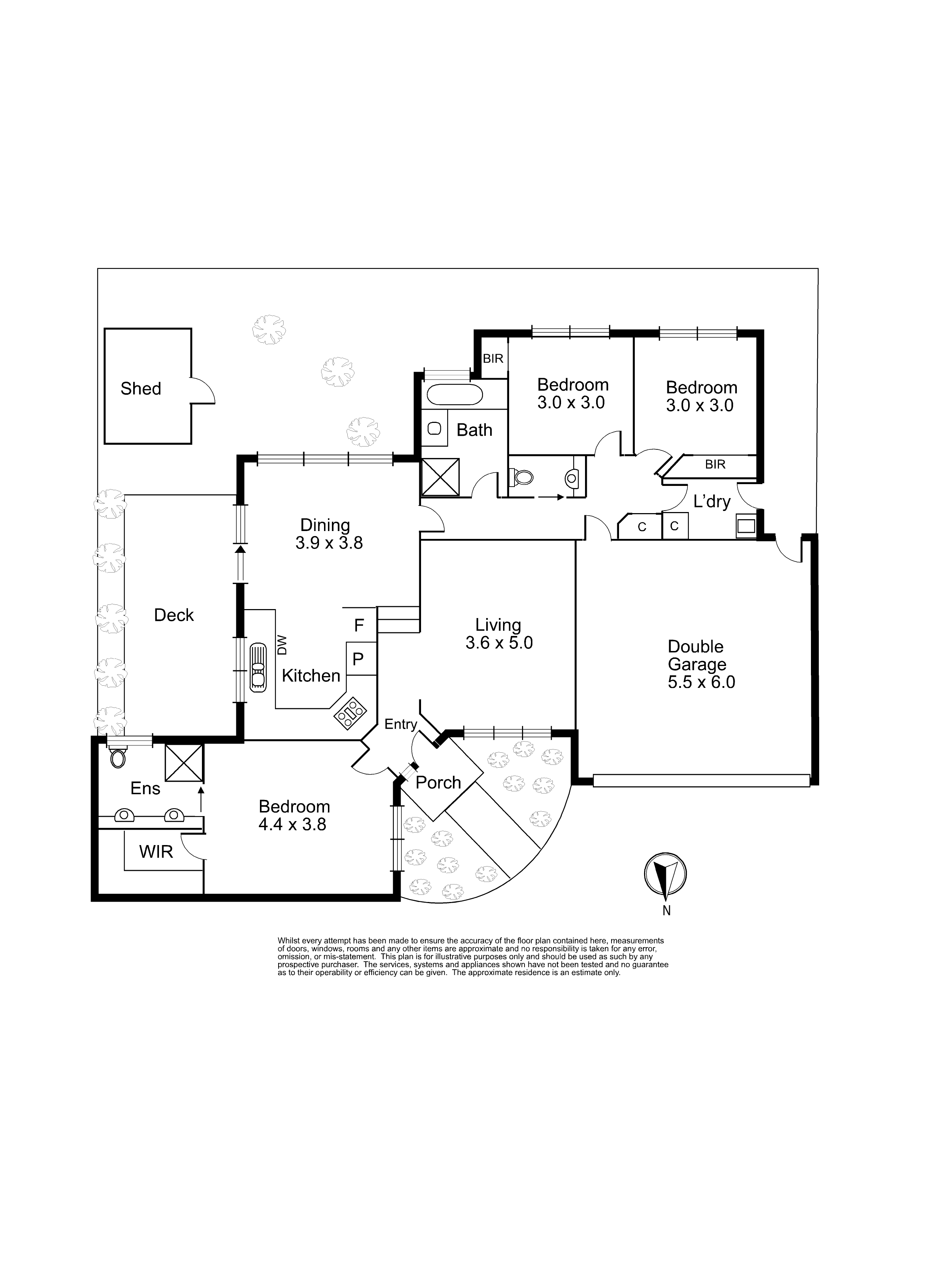
Splashed with sunshine and style across a roomy three-bedroom layout, this modern villa unit offers a private indoor-outdoor lifestyle in a fabulous low-maintenance setting. The rear of only two homes at the doorstep to the scenic Gardiners Creek trail, the home promotes a leisurely lifestyle, within footsteps of numerous sporting clubs including Riversdale Golf Club, plus Jordanville station and local schools, while minutes from Ashwood’s shopping and eateries, and the boutique food and fashion at Chadstone.

Brushed in a warm neutral colour palette, the home is instantly inviting, welcoming guests to relax in a north-facing lounge room, while easily holding crowds for vibrant entertaining. The kitchen adjoins the dining room to easily cater to family and friends, providing a full array of modern stainless steel appliances and ample storage including a large pantry.

Extending outwards to a sprawling deck, the home indulges alfresco dining and barbecue celebrations behind a leafy screening, while providing space for kids’ play in a private, easy-care yard.

The accommodation places parents at the front of the home in a spacious main bedroom with a walk-in robe and a twin-basin ensuite. At the back of the home, two secondary bedrooms are generously sized and fitted with mirrored built-in robes, sharing a sparkling family bathroom. Finished with a guest powder room, a laundry room, and an internal-access double garage, the home assures a comfortable lifestyle amid ducted heating and evaporative cooling.

VIEWING TIMES are subject to cancellation/change 3 hours prior to the open for inspection.
We advise that you check the listing on the day, to ensure that the property is still available prior to inspection to avoid disappointment.

Statement of Information Floor plan

Location

Subscribe to our Newsletter

"*" indicates required fields

This field is for validation purposes and should be left unchanged.